金屬硬密封(鍛鋼)球閥
產品概覽
鍛鋼法蘭式高壓球閥關閉部件球體圍繞閥體中心線旋轉以開啟和關閉閥門,密封件嵌在不銹鋼閥座中,金屬閥座上裝有彈簧,當密封面磨損或燃燒時,在彈簧的作用下推動閥座與球體形成金屬密封。具有獨特的自動泄壓功能,當閥腔介質壓力超過彈簧預緊力時,出口閥座退球,達到自動泄壓效果,泄壓后閥座自動復位,適用于水、溶劑、酸和氣體等一般工作介質,也適用于介質工況,如氧氣、過氧化氫、甲烷和乙烯,它已在各個行業得到很好的應用。
產品結構特點:
1、本產品所有部件均為鍛件。
2、采用底裝式閥桿,設置倒密封結構,確保填料處可靠密封,防止閥桿脫出。
3、采用鑲嵌式閥座,閥座后方設有O型圈,確保介質不外漏。
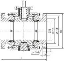
產品結構
主要外形尺寸
(GB): PN40
|
DN |
L |
D |
D1 |
D2 |
B |
F |
N-ΦD |
|
100 |
305 |
235 |
190 |
162 |
24 |
2 |
8-18 |
|
125 |
381 |
270 |
220 |
188 |
26 |
2 |
8-26 |
|
150 |
403 |
300 |
250 |
210 |
28 |
2 |
8-26 |
|
200 |
502 |
375 |
320 |
285 |
34 |
2 |
12-30 |
|
250 |
568 |
450 |
385 |
345 |
38 |
2 |
12-33 |
|
300 |
648 |
515 |
450 |
410 |
42 |
2 |
16-33 |
|
350 |
762 |
580 |
510 |
465 |
46 |
2 |
16-36 |
|
400 |
838 |
660 |
585 |
535 |
50 |
2 |
16-39 |
(GB): PN63
|
DN |
L |
D |
D1 |
D2 |
B |
F |
N-ΦD |
|
100 |
406 |
250 |
200 |
162 |
30 |
2 |
8-26 |
|
125 |
432 |
295 |
240 |
188 |
34 |
2 |
8-30 |
|
150 |
495 |
345 |
280 |
218 |
36 |
2 |
8-33 |
|
200 |
597 |
415 |
345 |
285 |
42 |
2 |
12-36 |
|
250 |
673 |
47 |
400 |
345 |
46 |
2 |
12-36 |
|
300 |
762 |
530 |
460 |
410 |
52 |
2 |
16-36 |
|
350 |
826 |
600 |
525 |
465 |
56 |
2 |
16-39 |
|
400 |
902 |
670 |
585 |
535 |
60 |
2 |
16-42 |
(GB): PN100
|
DN |
L |
D |
D1 |
D2 |
B |
F |
N-ΦD |
|
100 |
432 |
265 |
210 |
162 |
40 |
2 |
8-30 |
|
125 |
508 |
315 |
250 |
188 |
40 |
2 |
8-33 |
|
150 |
559 |
355 |
290 |
218 |
44 |
2 |
12-33 |
|
200 |
660 |
430 |
360 |
285 |
52 |
2 |
12-36 |
|
250 |
787 |
505 |
430 |
345 |
60 |
2 |
12-39 |
|
300 |
838 |
585 |
500 |
410 |
68 |
2 |
16-42 |
|
350 |
889 |
655 |
560 |
465 |
74 |
2 |
16-48 |
|
400 |
991 |
715 |
620 |
535 |
78 |
2 |
16-48 |
(ANSI): 300LB
|
DN |
L |
D |
D1 |
D2 |
B |
F |
N-ΦD |
|
100 |
305 |
255 |
200 |
157.2 |
32.2 |
2 |
8-22 |
|
125 |
381 |
280 |
235 |
185.7 |
35.4 |
2 |
8-22 |
|
150 |
403 |
320 |
269.9 |
215.9 |
37 |
2 |
12-22 |
|
200 |
502 |
380 |
330.2 |
269.9 |
41.7 |
2 |
12-26 |
|
250 |
568 |
445 |
387.4 |
323.8 |
48.1 |
2 |
16-30 |
|
300 |
648 |
520 |
450.8 |
381 |
51.3 |
2 |
16-33 |
|
350 |
762 |
585 |
514.4 |
412.8 |
54.4 |
2 |
20-33 |
|
400 |
838 |
650 |
571.5 |
469.9 |
57.6 |
2 |
20-36 |
(ANSI): 600LB
| ?NOMINAL DIAMETER |
L |
D |
D1 |
D2 |
B |
F |
N-ΦD |
|
|
4″ |
100 |
432 |
275 |
215.9 |
157.2 |
45.1 |
7 |
8-25 |
|
5″ |
125 |
508 |
330 |
266.7 |
185.7 |
51.5 |
7 |
8-30 |
|
6″ |
150 |
559 |
355 |
292.1 |
215.9 |
54.7 |
7 |
12-29 |
|
8″ |
200 |
660 |
420 |
349.2 |
269.9 |
62.6 |
7 |
12-32 |
|
10″ |
250 |
787 |
510 |
431.8 |
323.8 |
70.5 |
7 |
16-35 |
|
12″ |
300 |
838 |
560 |
489 |
381 |
73.7 |
7 |
20-35 |
|
14″ |
350 |
889 |
605 |
527 |
412.8 |
76.9 |
7 |
20-38 |
(ANSI): 900LB
| ?NOMINAL DIAMETER |
L |
D |
D1 |
D2 |
B |
F |
N-ΦD |
|
|
4″ |
100 |
432 |
290 |
235 |
157.2 |
51.5 |
7 |
8-32 |
|
5″ |
125 |
508 |
350 |
279.4 |
185.7 |
57.8 |
7 |
8-36 |
|
6″ |
150 |
559 |
380 |
317.5 |
215.9 |
62.6 |
7 |
12-32 |
|
8″ |
200 |
660 |
470 |
393.7 |
269.9 |
70.5 |
7 |
12-38 |
|
10″ |
250 |
787 |
545 |
469.9 |
323.8 |
76.9 |
7 |
16-38 |
|
12″ |
300 |
838 |
610 |
533.4 |
381 |
86.4 |
7 |
20-38 |
|
14″ |
350 |
889 |
640 |
558.8 |
412.8 |
92.8 |
7 |
20-42 |
|
16″ |
400 |
991 |
705 |
616 |
469.9 |
95.9 |
7 |
20-45 |










